ID CP2842385

Cladire de birouri de vanzare***877mp***Dorobanti

Această proprietate nu mai este activă,
te invităm să vizualizezi proprietăți similare

ID CP2842385

3,500,000 €

Spațiu de birouri de vânzare
Dorobanti, Bucuresti
877.3 mp
2024

Într-una dintre cele mai prestigioase și bine conectate zone ale Capitalei – Dorobanți – Maddax vă propune o clădire de birouri modernă, bine organizată, ideală pentru companii care își doresc un spațiu de lucru elegant, funcțional și într-o locație reprezentativă.

Proprietatea se desfășoară pe 4 nivele, având o suprafață totală construită de 877 mp, și oferă toate facilitățile necesare unui mediu de lucru eficient și confortabil.

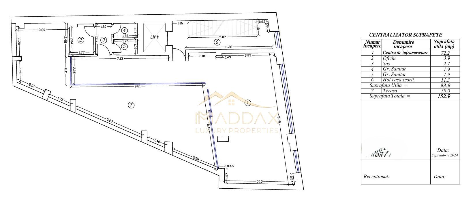
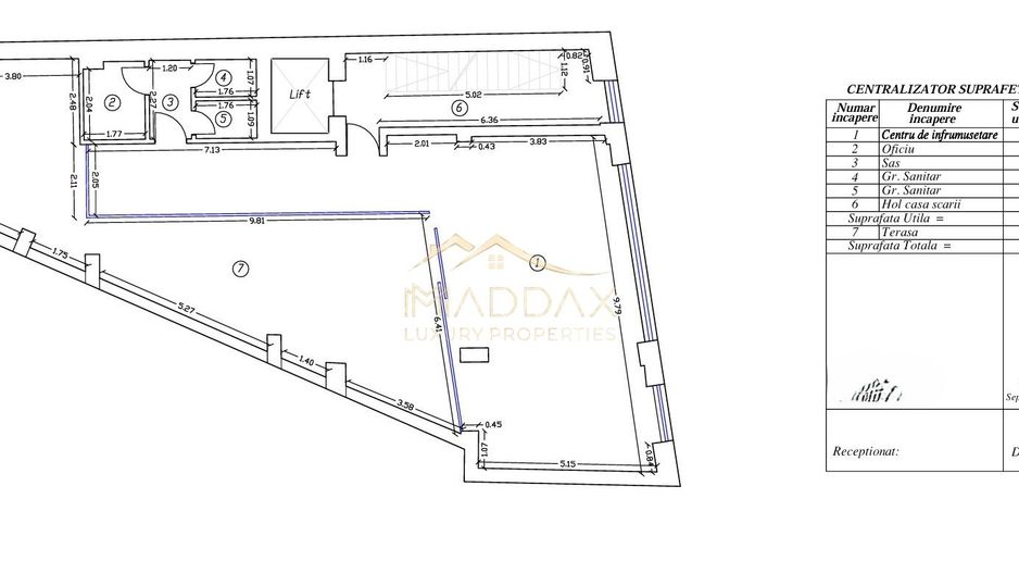
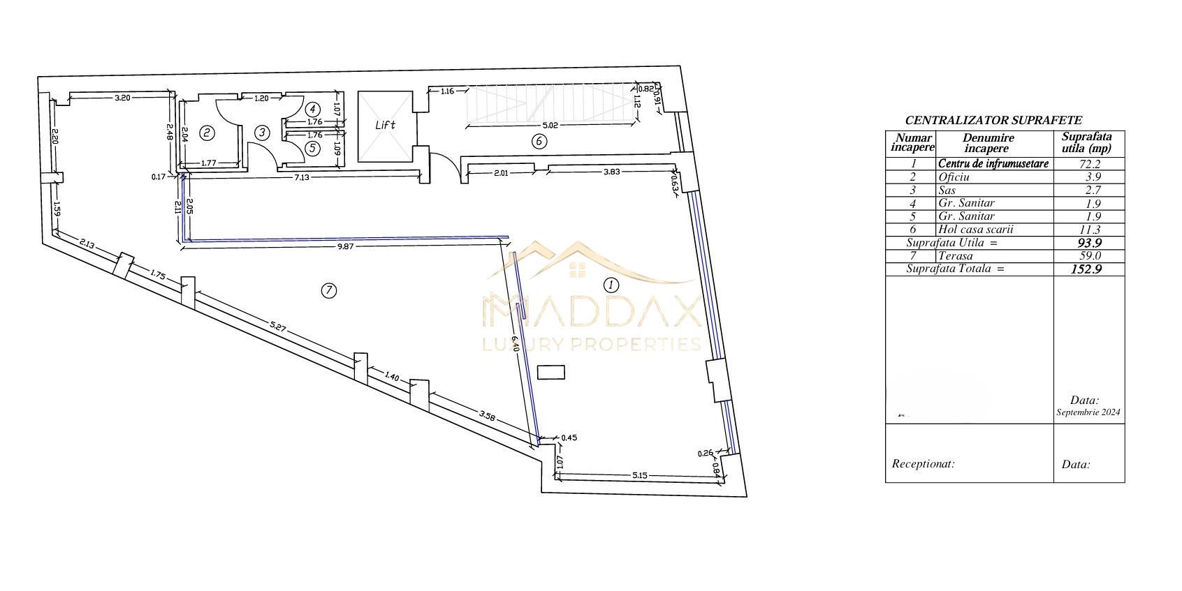
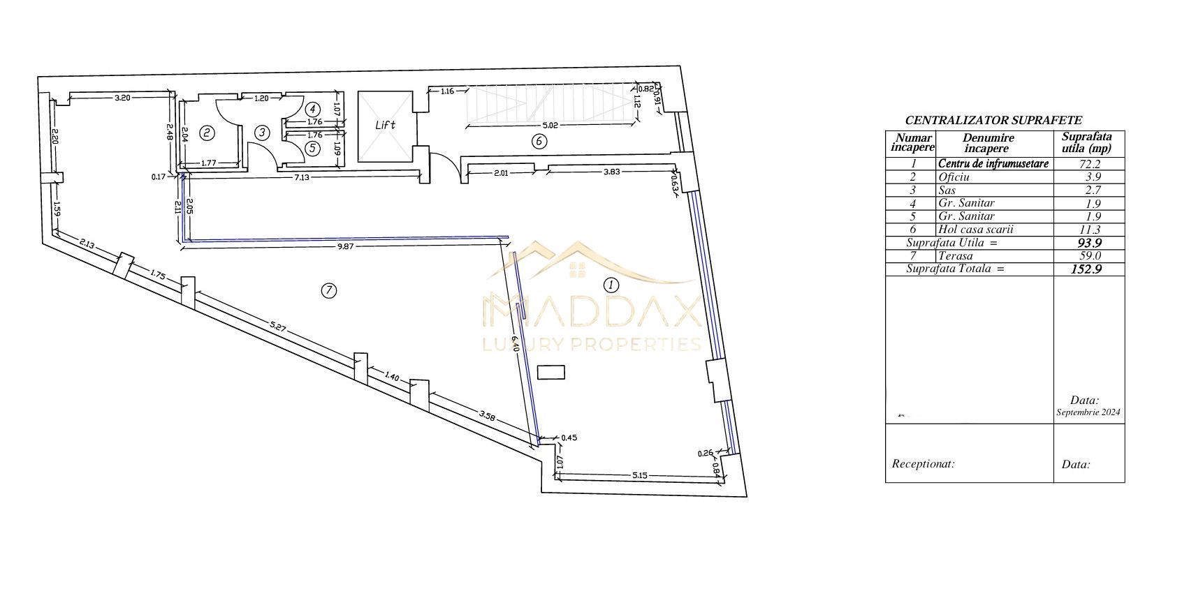
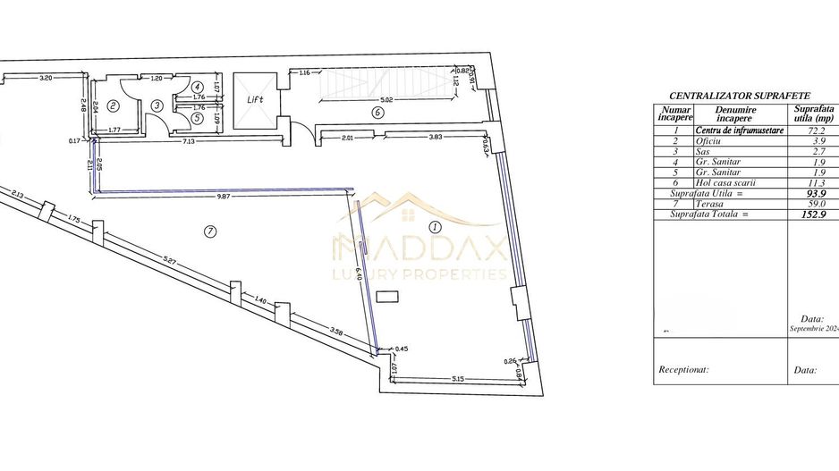
Compartimentare:

Subsol – 209,5 mp

Dotat cu sistem de parcare tip Klaus pentru 4 autoturisme, spațiul poate acomoda și zone de arhivare, tehnice sau depozitare.

Parter – 143,8 mp

Ideal pentru recepție, zonă de primire sau birouri front office. Include 2 grupuri sanitare.

Etajul 1 – 152,9 mp

Etajul 2 – 152,9 mp

Etajul 3 – 153,2 mp

Aceste trei niveluri oferă spații luminoase, versatile, potrivite atât pentru birouri open-space, cât și pentru compartimentări funcționale în funcție de nevoi: birouri executive, săli de ședință, zone de relaxare sau lucru colaborativ.

Etajul 4 – 12,2 mp + terasă 52,8 mp

Un spațiu exclusivist, ideal ca birou privat sau lounge, cu acces direct către o terasă spațioasă ce oferă o priveliște deschisă – perfectă pentru momente de relaxare sau evenimente corporate în aer liber.

Beneficii:

Poziționare strategică în zona Dorobanți – aproape de centre de afaceri, restaurante, instituții și mijloace de transport în comun.

Parcare privată, un avantaj esențial într-o zonă centrală.

Design funcțional și flexibilitate în compartimentare.

Ideală pentru: sediu de firmă, firmă de avocatură, agenție, clinici medicale, spații de coworking sau ca investiție cu randament bun.

Maddax îți propune o clădire care îmbină eleganța urbană cu pragmatismul business-ului modern. Disponibilă pentru vânzare sau închiriere, această proprietate este o soluție solidă pentru companiile care doresc vizibilitate, confort și funcționalitate într-o locație de top.

Pentru detalii suplimentare, vizionare sau ofertă personalizată, nu ezitati sa ne contactati.

Citește mai mult

  • Tip imobil
    Clădire birouri
  • Etaj
    4
  • Clasă birouri
    A
  • Număr băi
    6
  • Număr terase
    1
  • Suprafață utilă
    877.3 mp
  • Disponibilitate
    Imediat
  • Compartimentare spațiu
    Open space
  • An construcție
    2024
  • Construcție nouă
    Da
  • Număr etaje clădire
    4
  • Număr subsoluri
    1
  • Clasă Energetică
    A

Facilități

Ferestre care se deschid
Garaj subteran
Parcare acoperită
Stație de autobuz în apropiere
Stație de tramvai în apropiere
Vedere panoramică
Vedere spre oraș
Necesare:

Site-ul nu poate funcționa corect fără aceste cookie-uri. Vezi cookie-urile

Statistică:

Strângem statistici anonime despre voi, vizitatorii unici, pentru a vă îmbunătăți experiența dumneavoastră. Vezi cookie-urile

Marketing:

Pentru a ne promova mai eficient serviciile noastre, folosim cookies pentru a vă identifica și a vă oferi proprietăți și servicii personalizate. Vezi cookie-urile

Acest site folosește cookies, află detalii. Alege ce tipuri de cookies dorești să permitem: