ID CP2797899

Spatiu birouri***2 etaje//300 mp//Imobil NOU**Central

ID CP2797899

850,000 € + 21% TVA

Spațiu de birouri de vânzare
Stefan cel Mare, Bucuresti
220 mp
2024

MADDAX Luxury Properties va propune spre vanzare un spatiu pentru birouri modern situat intr-o zona centrala din capitala, avand in proximitate strada M. Eminescu, str. Stefan cel mare, str. Viitorului. Locatia ofera acces facil la mijloace de transport in comun, statii RATB, conexiune rapida cu Piata Romana, zona Floreasca, respectiv zona Obor.

Cladirea este noua si respecta reglementarile de integrare urbanistica, avand o arhitectura moderna.

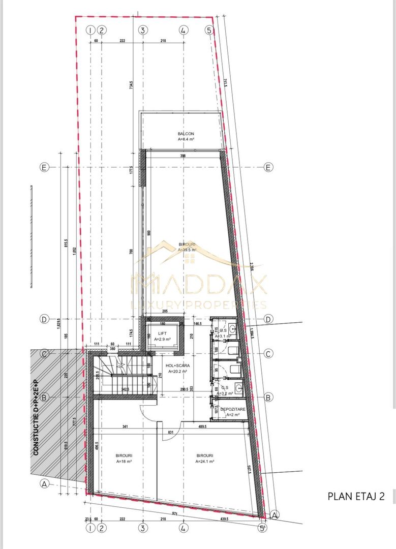
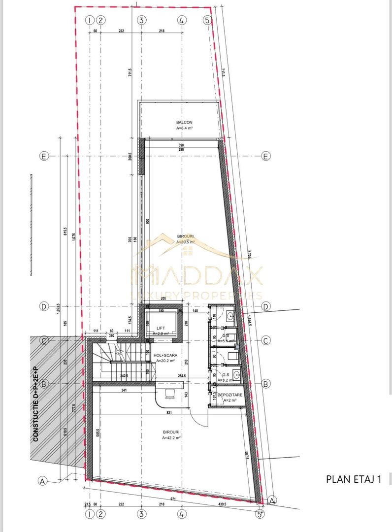
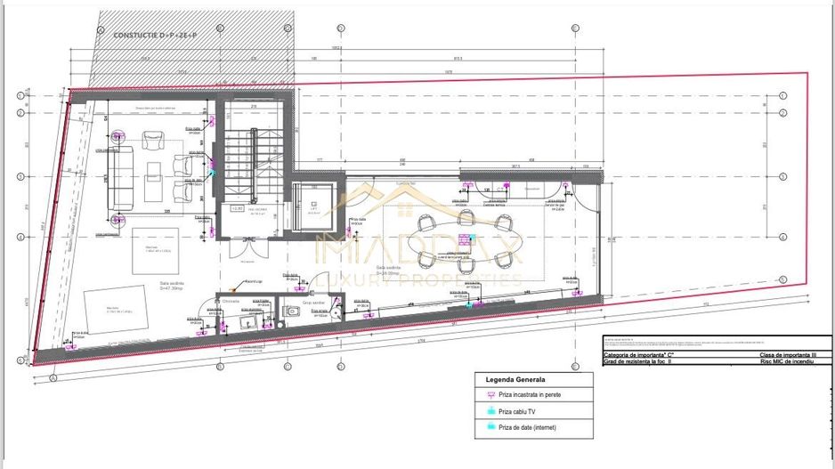
Spatiul cu suprafata totala de 300 mp este dispus pe 2 niveluri: etaj 1 (110 mp) si etaj 2 (110 mp), existand intabulare si contorizare separata. Interiorul este compartimentat eficient, permitand flexibilitate maxima in amenajare. Este compus din: birouri individuale, sali de sedinta, chicineta si grup sanitar pe fiecare etaj si ofera iesire pe terasa circulara a imobilului, de 98 mp, precum si pe o terasa verde de 22,3 mp.

Dotari: sistem de climatizare, retea IT structurata,

Accesul se face direct din strada, la parter urmand a fi amenajat un spatiu comercial.

Spatiul beneficiaza de toate utilitatile (curent trifazic, apa, canalizare, internet) si dispune de 3 locuri de parcare incluse in pret.

Datorita pozitionarii excelente, spatul ofera acces facil la toate zonele de interes ale capitalei.

Pentru mai multe detalii suntem aici pentru dumneavoastra,

Echipa Maddax

Citește mai mult

  • Tip imobil
    Clădire birouri
  • Etaj
    1, 2
  • Număr băi
    2
  • Suprafață construită
    300 mp
  • Număr terase
    2
  • Suprafață utilă
    220 mp
  • Disponibilitate
    Imediat
  • Compartimentare spațiu
    Compartimentat
  • Parcări suprafață disponibile
    3
  • An construcție
    2024
  • Construcție nouă
    Da

Facilități

Acces pentru persoane cu dizabilități
Contorizare separată
Control electric individual pe zona de birou
Internet
Parcare deschisă
Stație de autobuz în apropiere
Stație de tramvai în apropiere
Telefon
Vestiar
Cristina Popescu - MADDAX Luxury Properties
Cristina Popescu
Business Partner

+40732307465


Solicită chiar acum o vizionare
Telefon
Sună acum Solicită vizionare
Necesare:

Site-ul nu poate funcționa corect fără aceste cookie-uri. Vezi cookie-urile

Statistică:

Strângem statistici anonime despre voi, vizitatorii unici, pentru a vă îmbunătăți experiența dumneavoastră. Vezi cookie-urile

Marketing:

Pentru a ne promova mai eficient serviciile noastre, folosim cookies pentru a vă identifica și a vă oferi proprietăți și servicii personalizate. Vezi cookie-urile

Acest site folosește cookies, află detalii. Alege ce tipuri de cookies dorești să permitem: