ID CP2964425

Spatiu de inchiriat // birou in zona premium // 100mp // Ultracentral

ID CP2964425

1,200 € + 21% TVA

Spațiu de birouri de închiriat
Cismigiu, Bucuresti
103 mp

MADDAX Luxury Properties va prezinta un spațiu de lucru productiv pentru afacerea dumneavoastră situat pe o strada bine cunoscuta dintr-o zona de prestigiu a Capitalei!

Cladirea este amplasata intr-o zona avantajoasa, care include mai multe spatii comerciale, cladiri rezidentiale, Parcul Cismigiu, Parcul Izvor, restaurante si cafenele, institutii si destinatii culturale, hoteluri, etc. Transport in comun in imediata apropiere, STB, metrou Izvor.

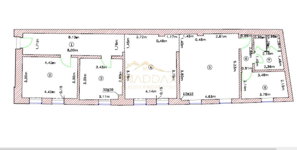
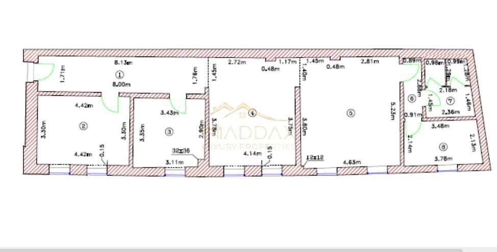
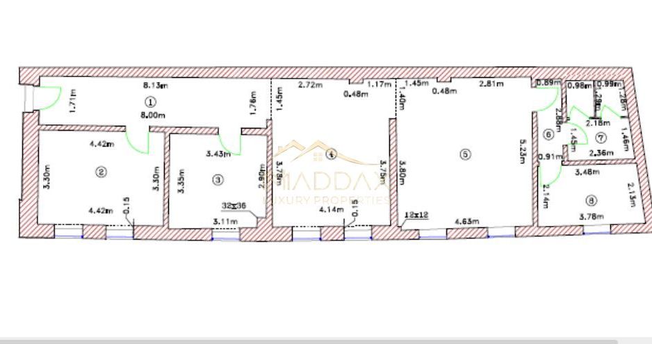
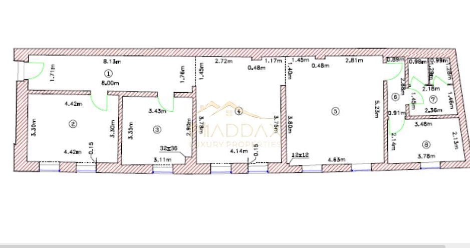
Spatiul se afla la etajul 1, alcatuit din 4 camere spatioase si luminoase. Dispoune de o bucatarie mobilata si un grup sanitar cu 2 toalete si doua lavoare comune.

La Parterul blocului se poate inchiria o sala moderna si spatioasa de sedinte, este mobilata cu o masa de dimensiuni mari cu 19 scaune, plus alte 4 de rezerva si tabla ''whiteboard'' pentru prezentari sau proiectari (vezi ultimele 4 poze).

Loc de parcare la suprafata existent.

Mentenanța se achita la 1eur/mp.

Pentru a stabili o vizionare va stau la dispozitie la numarul de telefon.

Citește mai mult

  • Tip imobil
    Clădire birouri
  • Etaj
    1
  • Număr camere
    4
  • Număr băi
    2
  • Suprafață utilă
    103 mp
  • Disponibilitate
    Imediat
  • Suprafață totală birouri
    72.6 mp
  • Compartimentare spațiu
    Compartimentat
  • Parcări suprafață
    1
  • Număr etaje clădire
    1
  • Are demisol
    Da
  • Are mansardă
    Da
  • Certificat Energetic
    Există
  • Clasă Energetică
    B

Facilități

Centrală termică
Gresie
Grupuri sanitare amenajate și utilate
Internet
Parcare deschisă
Parchet
Stație de autobuz în apropiere
Stație de metrou în apropiere
Telefon
Beatrice Ionita - MADDAX Luxury Properties
Beatrice Ionita
Business Partner

+40770714783


Solicită chiar acum o vizionare
Telefon
Sună acum Solicită vizionare
Necesare:

Site-ul nu poate funcționa corect fără aceste cookie-uri. Vezi cookie-urile

Statistică:

Strângem statistici anonime despre voi, vizitatorii unici, pentru a vă îmbunătăți experiența dumneavoastră. Vezi cookie-urile

Marketing:

Pentru a ne promova mai eficient serviciile noastre, folosim cookies pentru a vă identifica și a vă oferi proprietăți și servicii personalizate. Vezi cookie-urile

Acest site folosește cookies, află detalii. Alege ce tipuri de cookies dorești să permitem: