ID CP2996421

Spatiu Comercial *731mp* / VAD stradal 31m / 19 locuri de parcare // Unirii

ID CP2996421
Spațiu comercial de vânzare
Unirii, Bucuresti
731.2 mp

Maddax are plăcerea sa prezinte o oportunitate extraordinară de investiție într-un concept comercial modern, modular, destinat activităților de alimentație publică (fast-food / restaurant) si alte domenii de activitate precum show-room (auto sau prezentare), in centrul Capitalei, Unirii.

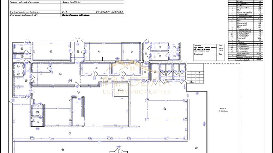
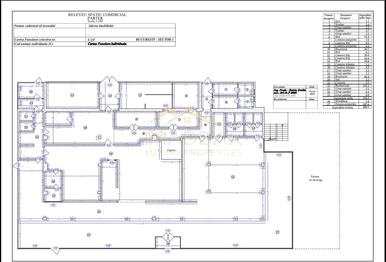
Parter

• 13 containere cu o suprafață totală de 404 mp, distribuite astfel: 9 containere pentru preparare, expunere, servire și grupuri sanitare (clienți și personal), 1 container vestiar – 18 mp, 2 containere pentru congelare și refrigerare – câte 45 mp fiecare, 1 container cameră tehnică – 9 mp

Terase și acces

• Terasă acoperită tip pergolă retractabilă – 119,2 mp

(amplasată frontal și lateral dreapta față de containere)

• Terasă descoperită – 60 mp (lateral dreapta)

• 1 scară de acces către etaj

Etaj (regim privat – acces restricționat publicului)

• 1 container cu birouri și grupuri sanitare – 36,2 mp

DESTINAȚIE

Întregul ansamblu (containere + terase + mobilier urban) are funcțiunea de:

- alimentație publică (fast-food / restaurant)

- show-room auto având o deschidere vitrata de 40m

INDICATORI URBANISTICI

• Suprafață ocupată: 731,2 mp

• Înălțime maximă: 5,80 m

• Suprafață containere: 404 mp

• Terasă acoperită: 119,2 mp

• Terasă descoperită: 60 mp

• Anexe: 65,7 mp

• Dimensiune maximă ansamblu: 30,25 m x 18,30 m

• Capacitate totală: 96 locuri (interior + terase)

• 19 locuri de parcare

SUPRAFAȚĂ DESFĂȘURATĂ

• Parter containere: 404 mp

• Terasă acoperită: 119,2 mp

• Etaj: 36,2 mp

• Suprafață totală desfășurată: 559,4 mp

CARACTERISTICI CONSTRUCTIVE

• Amplasare pe platformă betonată existentă

• Spații auxiliare realizate din:

- panouri OSB, panouri sandwich, structură metalică, învelitori din tablă galvanizată / plăci bituminoase, copertină de protecție pentru zona de congelare/refrigerare, Jardiniere mobile cu plante decorative (naturale sau artificiale)

TERASĂ

• Pergolă retractabilă – 119,2 mp

• Închidere cu geamuri securizate glisante (SCS)

• Structură metalică

TÂMPLĂRII ȘI STRUCTURĂ

• Uși și ferestre: PVC cu geam termoizolant

• Terasă: tâmplărie aluminiu cu geam clar

• Structură: cadru metalic , exterior: panouri sandwich si interior: gips-carton

FINISAJE INTERIOARE

• Pardoseli: plăci ceramice antiderapante

• Pereți: panouri sandwich + gips-carton, finisate cu plăci ceramice și vopsea lavabilă

• Tavane: sistem similar pereților, finisate cu plăci ceramice și vopsea lavabilă

DOTĂRI

• Sistem de climatizare

• Sistem de ventilare și aerisire (hote)

• Branșament electric contorizat

FINISAJE EXTERIOARE

• Fațadă din panouri tip sandwich (bond)

Proprietatea se pretează pentru aproape orice tip de business, având in vedere locația, deschiderea stradală vitrata impresionanta de 31m si suprafata spațiului.

Pentru mai multe detalii, suntem aici pentru tine.

Citește mai mult

  • Tip imobil
    Stradal
  • Trafic pietonal
    Intens
  • Etaj
    Parter, 1
  • Număr băi
    8
  • Număr terase
    2
  • Număr bucătării
    1
  • Suprafață utilă
    731.2 mp
  • Front stradal
    31.0 m
  • Vitrină (m)
    40.0 m
  • Înălțime interioară
    3.0
  • Disponibilitate
    Imediat
  • Compartimentare spațiu
    Compartimentat
  • Număr locuri parcare
    19
  • Construcție nouă
    Da
  • Număr etaje clădire
    1
  • Clasă Energetică
    A

Facilități

Acces secundar marfă
Afișare logo pe clădire
Apă
Canalizare
Centrală termică
Contorizare separată
Curent
Grupuri sanitare amenajate și utilate
Parcare deschisă
Posibilitate terasă
Sistem de alarmă
Sistem de ventilație
Vedere panoramică
Vedere spre oraș
Vestiar
Madalina Buftea - MADDAX Luxury Properties
Madalina Buftea
CEO

+40786606301


Solicită chiar acum o vizionare
Telefon
Sună acum Solicită vizionare
Necesare:

Site-ul nu poate funcționa corect fără aceste cookie-uri. Vezi cookie-urile

Statistică:

Strângem statistici anonime despre voi, vizitatorii unici, pentru a vă îmbunătăți experiența dumneavoastră. Vezi cookie-urile

Marketing:

Pentru a ne promova mai eficient serviciile noastre, folosim cookies pentru a vă identifica și a vă oferi proprietăți și servicii personalizate. Vezi cookie-urile

Acest site folosește cookies, află detalii. Alege ce tipuri de cookies dorești să permitem: