ID CP2851984

Casa traditionala cu potential**Teren 1712 MP**in Centrul IANCA //OLT

ID CP2851984

58,000 €

Casă / Vilă cu 5 camere de vânzare
Ianca
116 mp
1945

Maddax Luxury Properties va ofera spre vanzare o casa traditionala cu potential, situata in inima localitatii Ianca, judetul Olt.

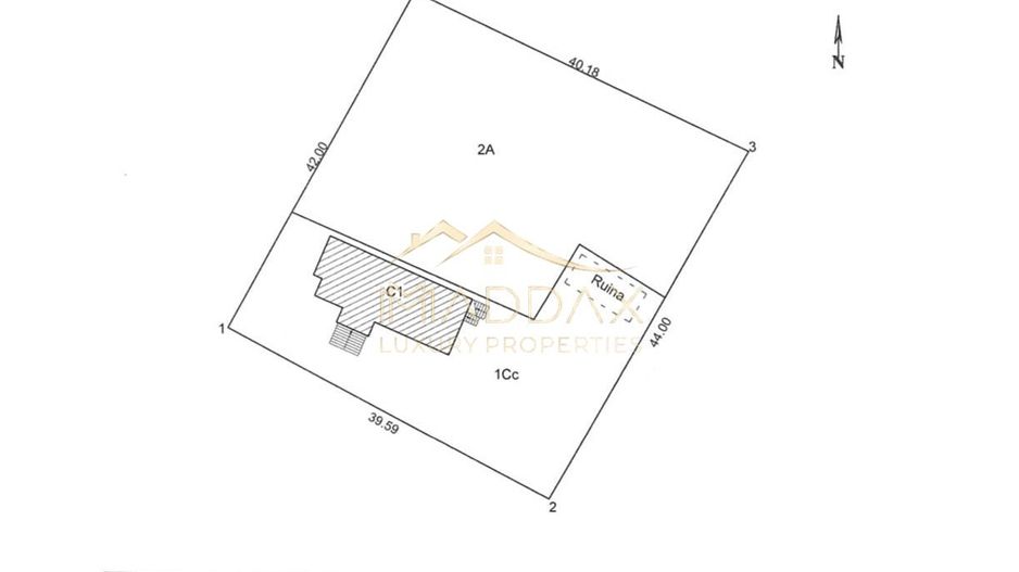
Proprietatea detine un teren imprejmuit, avand dubla deschidere stradala: 40,18 m la drumul de acces si 39.59 m la strada Principala. Suprafata generoasa de 1712 mp ofera multiple posibilitati de amenajare: gradina, livada, spatiu de relaxare sau extindere a constructiei existente.

Imobilul este construit in stil traditional, cu o structura solida, specifica vremurilor si pastreaza farmecul rustic al zonei.

Casa necesita renovare completa si poate fi extinsa, reconstruita, transformata in casa de vacanta sau cu destinatie comerciala: pensiune rurala, magazin, mini ferma.

Utilitatile (apa, electricitate, canalizare, gaz) sunt disponibile in proximitate, ceea ce inseamna ca puteti incepe deja proiectul.

Zona linistita cu acces rapid la DN si orasele apropiate.

Aceasta proprietate cu adevarat speciala a apartinut unor oameni de seama din localitate si este un loc ideal pentru un nou inceput in Ianca, judetul Olt.

Pentru mai multe detalii, suntem aici pentru dumneavoastra,

Echipa MADDAX

Citește mai mult

  • Număr camere
    5
  • Dormitoare
    4
  • Număr bucătării
    1
  • Disponibilitate
    Imediat
  • Tip casă
    Individual
  • Stare interior
    Necesită renovare
  • Suprafață utilă
    116 mp
  • Suprafață construită
    146 mp
  • Suprafață teren
    1,712 mp
  • Suprafață curte liberă
    1,596 mp
  • Stadiu construcție
    Necesită renovare
  • An construcție
    1945
  • Are pod
    Da

Facilități

Grădină proprie
Iluminat stradal
Mijloace de transport în comun
Pivniță
Sobă / Teracotă
Străzi asfaltate
Cristina Popescu - MADDAX Luxury Properties
Cristina Popescu
Manager

+40732307465


Solicită chiar acum o vizionare
Telefon
Sună acum Solicită vizionare
Necesare:

Site-ul nu poate funcționa corect fără aceste cookie-uri. Vezi cookie-urile

Statistică:

Strângem statistici anonime despre voi, vizitatorii unici, pentru a vă îmbunătăți experiența dumneavoastră. Vezi cookie-urile

Marketing:

Pentru a ne promova mai eficient serviciile noastre, folosim cookies pentru a vă identifica și a vă oferi proprietăți și servicii personalizate. Vezi cookie-urile

Acest site folosește cookies, află detalii. Alege ce tipuri de cookies dorești să permitem: