ID CP3017604

Vila exclusivista_P+1*5 Camere*Teren 704 mp*Langa Padure//Balotesti

ID CP3017604

277,000 €

Casă / Vilă cu 5 camere de vânzare
Balotesti
163 mp
2025

MADDAX Luxury Properties are placerea de a va prezenta spre vanzare o vila eleganta, tip P+1, situata intr-o comunitate exclusivista din localitatea Balotesti.

Locatia se afla intr-un cadru natural deosebit, langa padure, si beneficiaza de o pozitionare strategica, oferind acces facil la marile artere ale capitalei: DN1, autostrazile A3 si A0. In proximitate (la ~2,5 km) se regasesc: Edenland Park, Drumbrava Vlasiei.

Lucrarile la metroul spre Otopeni (Magistrala 6) sunt deja demarate, ceea ce va oferi un plus de valoare proprietatilor si conexiune rapida cu capitala.

Regiunea este in plina dezvoltare, vilele noi construite in zona fiind amplasate pe suprafete generoase de teren, ceea ce asigura confort si intimitate.

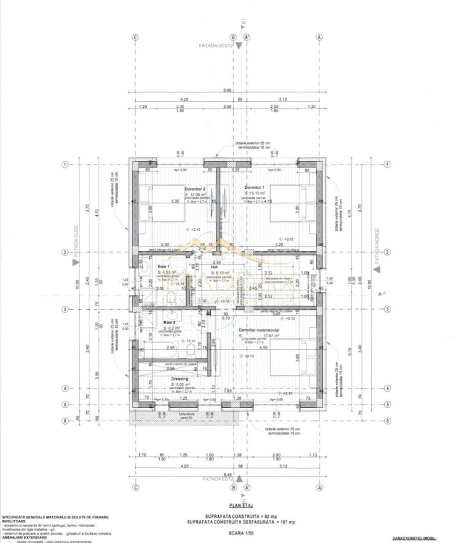
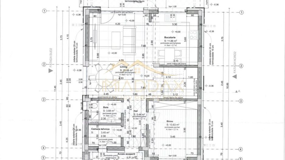
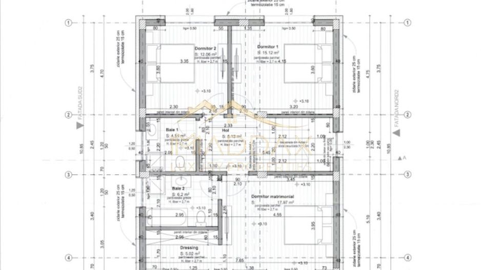
Vila impresioneaza printr-o compartimentare excelenta, perfecta pentru stilul de viata contemporan. Parterul cuprinde livingul spatios + zona de dining (25.88 mp), terasa pavata cu travertin (25.36 mp), bucatarie (11.88 mp), camera pentru hobby/birou/dormitor oaspeti (13.63), camera tehnica (3.45 mp) si baie (3.68 mp). La etaj regasim 3 dormitoare (17.97 mp/15.12 mp/11.88 mp), dressing (5 mp) si 2 bai (6.19 mp/4.51 mp). Suprafețele vitrate generoase permit luminii naturale să inunde spațiile interioare, creând o atmosferă luminoasă și primitoare.

*Casa se preda complet finisata, cu materiale de inalta calitate selectate de designer. Incălzirea în pardoseală se afla pe toata suprafata parterului, avand incorporat sistem wireless pentru reglarea temperaturii. La etaj sunt montate calorifere de otel, iar in bai radiatoare portprosop.

*Constructia este realizata pe fundatii continue din beton armat, structura cu stalpi, grinzi si planseu armat peste parter de 15 cm grosime. *Fundatiile sunt hidroizolate cu bitum pensulat si placate cu polistiren de 5 cm. Zidaria este executata din blocuri ceramice cu grosimea de 30 cm. Invelitoarea este din tigla metalica marca BILKA. Toate compartimentarile interioare sunt din caramida, peretii tencuiti si gletuiti, sapele elicopterizate.

*Se acorda garantie pentru lucrarile aparente timp de 2 ani de la data predarii, pentru orice defectiune aparuta.

*Casa dispune de doua locuri de parcare amenajate cu pavaj, curte nivelata pregatita pentru insamantarea gazonului, sursa de apa cu robinet montata in curte, cabluri de iluminat pentru intreaga proprietate, senzori de gaze, instalatie de impamantare.

Vila este complet finisata si pregatita pentru a primi noii proprietari.

***Si daca aveti o familie de prieteni pe care vi-i doriti aproape, dezvoltatorul are disponibila o casa similara chiar vizavi. Astfel, veti putea impartasi zi de zi bucurii, momente si amintiri impreuna.

Va oferim oportunitatea unui nou inceput, intr-o casa care are tot ce va doriti: spatiu, lumina, confort, intimitate, aer curat si natura.

Pentru mai multe detalii, suntem aici pentru dumneavoastra,

Echipa MADDAX Luxury Properties

Citește mai mult

  • Număr camere
    5
  • Dormitoare
    3
  • Număr bucătării
    1
  • Număr băi
    3
  • Geam la baie
    Da
  • Număr terase
    1
  • Disponibilitate
    Imediat
  • Tip casă
    Individual
  • Suprafață utilă
    163 mp
  • Suprafață construită
    187 mp
  • Suprafață construită la sol (Amprentă)
    95.0 mp
  • Suprafață teren
    704 mp
  • Suprafață curte liberă
    609 mp
  • An construcție
    2025
  • Construcție nouă
    Da
  • De la dezvoltator
    Da
  • Tip construcție
    Cărămidă

Facilități

Aer condiționat
Apă
Cabină de duș
Cadă
Calorifere
Canalizare
CATV
Centrală proprie
Curent
Curte
Debara
Dressing
Gaz
Geamuri tripan
Grădină proprie
Iluminat stradal
Încălzire prin pardoseală
Internet
Izolație exterioară
Izolație interioară
Mijloace de transport în comun
Nemobilat
Parcare deschisă
Scară interioară
Uși interior celulare
Vedere panoramică
WC Serviciu
Cristina Popescu - MADDAX Luxury Properties
Cristina Popescu
Manager

+40732307465


Solicită chiar acum o vizionare
Telefon
Sună acum Solicită vizionare
Necesare:

Site-ul nu poate funcționa corect fără aceste cookie-uri. Vezi cookie-urile

Statistică:

Strângem statistici anonime despre voi, vizitatorii unici, pentru a vă îmbunătăți experiența dumneavoastră. Vezi cookie-urile

Marketing:

Pentru a ne promova mai eficient serviciile noastre, folosim cookies pentru a vă identifica și a vă oferi proprietăți și servicii personalizate. Vezi cookie-urile

Acest site folosește cookies, află detalii. Alege ce tipuri de cookies dorești să permitem: