ID CP2797864

Vila individuala_P+1 ***4 camere***380 mp teren//Tamasi-CORBEANCA

Această proprietate nu mai este activă,
te invităm să vizualizezi proprietăți similare

ID CP2797864

200,000 € TVA inclus

Casă / Vilă cu 4 camere de vânzare
Corbeanca
94 mp
2024

Maddax Luxury Properties va oferă oportunitatea de a deveni proprietarii unei vile moderne, situată într-un cartier exclusivist de case din Tamasi - Corbeanca, cu acces rapid la DN1/Otopeni.

Cartierul este special prin comunitatea moderna si linistita formata din oameni frumosi si marinimosi care creeaza o atmosfera calda, sigura si primitoare. Strazile curate, gradinile frumos amenajate, accentele de lumina de pe fatada, arhitectura similara a caselor dau un aer unitar si elegant intregului ansamblu.

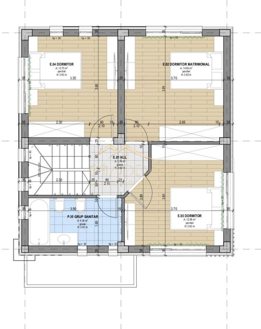
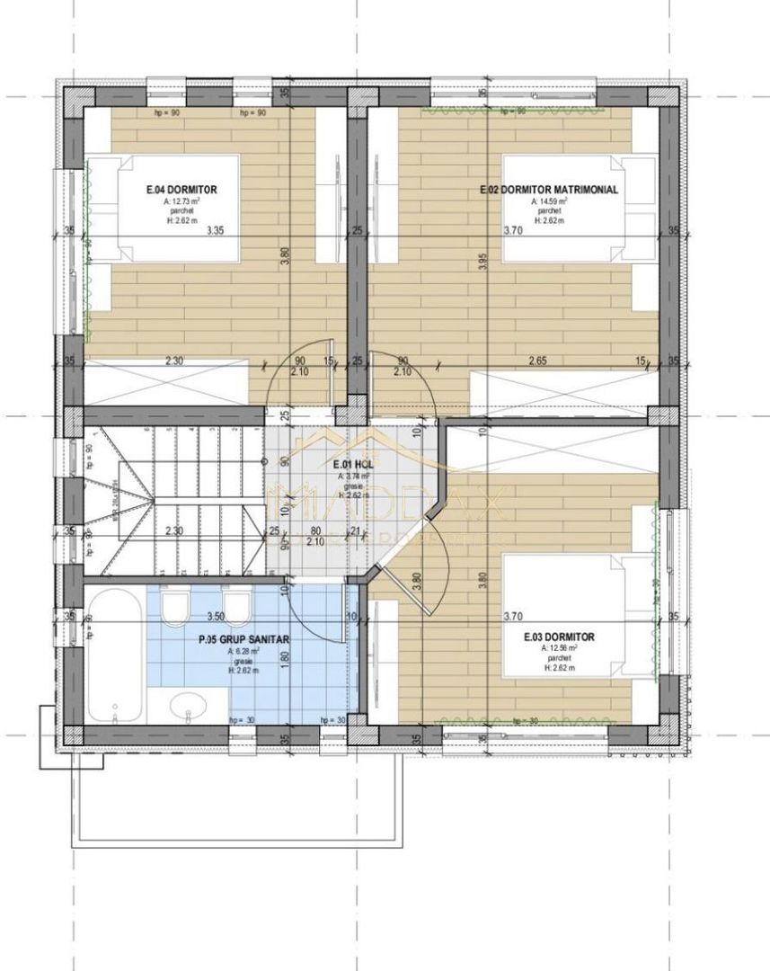
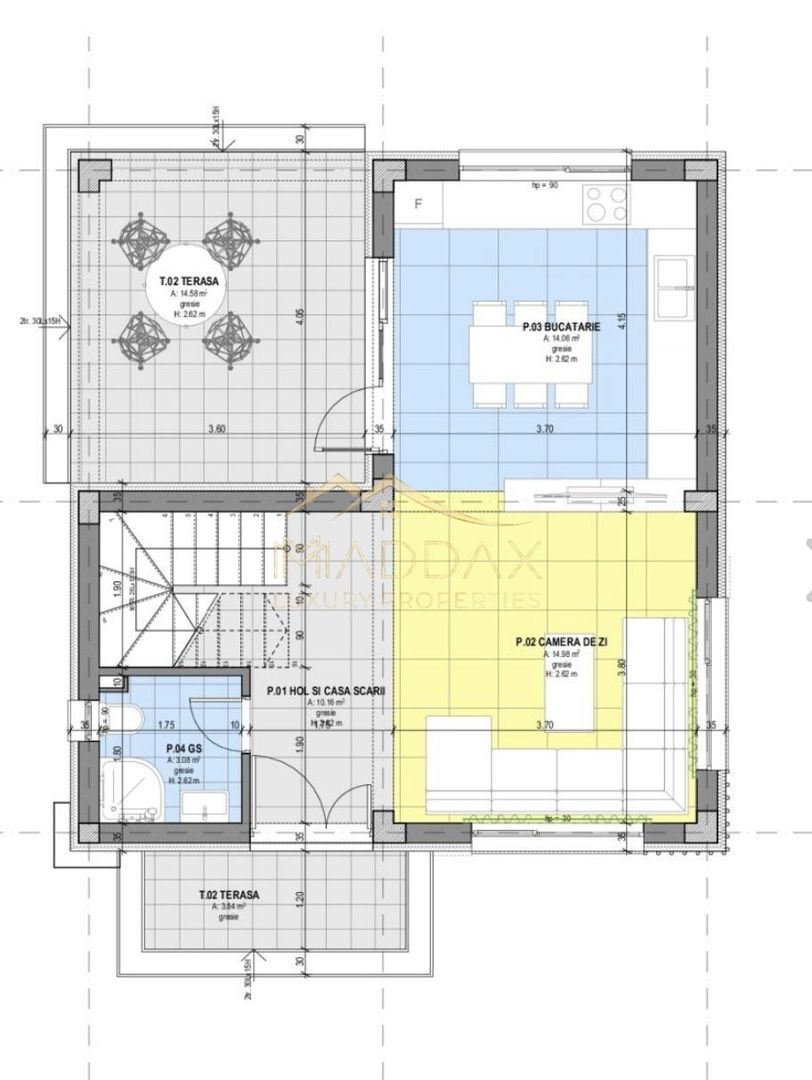
Vila oferă o compartimentare excelenta, avand la parter un living spatios si luminos + zona de dining, baie cu zona de dus, bucatarie si terasa prevazuta cu incalzire in pardoseala ce poate fi inchisa cu panouri din sticla securizata, iar la etaj : 3 dormitoare cu suprafete vitrate si o baie cu cada.

Proprietatea deține o curte generoasa de 380 mp, avand posibilitatea de a o amenaja cu piscina, gazon si arbori asa cum va doriti.

Locuri de parcare: 2 + posibilitatea de a beneficia de inca alte 3-4 locuri de parcare pentru vizitatori in fata casei.

Complexul din care face parte aceasta vila pastreaza rigorile și standardele înalte de calitate in constructii, fiind racordat la toate utilitatile: apa, canalizare publica, gaz, electricitate, cablu fibra optica, strada asfaltata si iluminata.

Specificatii tehnice:

* Ziduri exterioare din caramida porotherm de 25 cm;

* Structura casei: beton armat si caramida;

* Izolatie exterioară: polistiren de 10 cm;

* Compartimentarile interioare sunt din caramida;

* Incalzire in pardoseala;

* Centrala termica individuala: IMMERGAS - 24 kW;

* Tamplarie GEALAN, PVC 6 camere, GEAM TRIPAN;

* Tigla metalica, izolatie cu celuloza;

* Gard sipca metalica între proprietăți și in spatele curții;

* Vila este racordata la reteaua de canalizare a localitatii Tamasi.

Pentru mai multe detalii suntem aici pentru tine,

Echipa MADDAX Luxury Properties

Citește mai mult

  • Număr camere
    4
  • Dormitoare
    3
  • Număr bucătării
    1
  • Număr băi
    2
  • Geam la baie
    Da
  • Număr locuri parcare
    2
  • Disponibilitate
    Imediat
  • Tip casă
    Individual
  • Stare interior
    Ultrafinisat
  • Anul finisării
    2024
  • Suprafață utilă
    94 mp
  • Suprafață construită
    140 mp
  • Suprafață teren
    388 mp
  • Acoperiș
    Terasă
  • An construcție
    2024
  • Construcție nouă
    Da
  • Tip construcție
    Beton
  • Număr etaje clădire
    1

Facilități

Acoperiș
Aer condiționat
Apă
Apometre
Bideu
Bucătărie deschisă
Cabină de duș
Cadă
Canalizare
CATV
Contor căldură
Contor electric
Contor gaz
Curent
Curte
Dressing
Ferestre PVC
Gaz
Grădină proprie
Iluminat stradal
Încălzire prin pardoseală
Interfon
Internet
Izolație exterioară
Izolație interioară
Mijloace de transport în comun
Parcare deschisă
Parchet
Pereți piatră naturală
Scară interioară
Sistem de alarmă
Străzi asfaltate
Telefon
Ușă intrare metal
Uși interior celulare
Var
Vedere panoramică
Vopsea lavabilă
Zonă pentru barbeque
Necesare:

Site-ul nu poate funcționa corect fără aceste cookie-uri. Vezi cookie-urile

Statistică:

Strângem statistici anonime despre voi, vizitatorii unici, pentru a vă îmbunătăți experiența dumneavoastră. Vezi cookie-urile

Marketing:

Pentru a ne promova mai eficient serviciile noastre, folosim cookies pentru a vă identifica și a vă oferi proprietăți și servicii personalizate. Vezi cookie-urile

Acest site folosește cookies, află detalii. Alege ce tipuri de cookies dorești să permitem: