ID CP2797871

Masterpiece Heritage Villa***18 rooms//DOWNTOWN BUCHAREST

ID CP2797871

23,000 €

Casă / Vilă cu 18 camere de închiriat
Gradina Icoanei, Bucuresti
627 mp
1938

MADDAX Luxury Properties va propune spre inchiriere o vila de patrimoniu exclusivista, situata intr-o locatie de prestigiu din zona Centrala a Capitalei.

In proximitate regasim locuri vibrante, importante puncte de intalnire ale oamenilor de afaceri, ministere, ambasade, galerii de arta, teatre, cafenele, locatii culturale remarcabile, hoteluri de lux.

Cu o arhitectura distinsa, aceasta cladire ofera businessului dumneavoastra un capital de imagine impresionant.

Prin caracterul sau elegant, unic, vila se preteaza unei game variate de destinatii: sediu reprezentativ pentru o companie de prestigiu, ambasada sau resedinta diplomatica, spatiu cultural sau locatie premium pentru evenimente private exclusiviste.

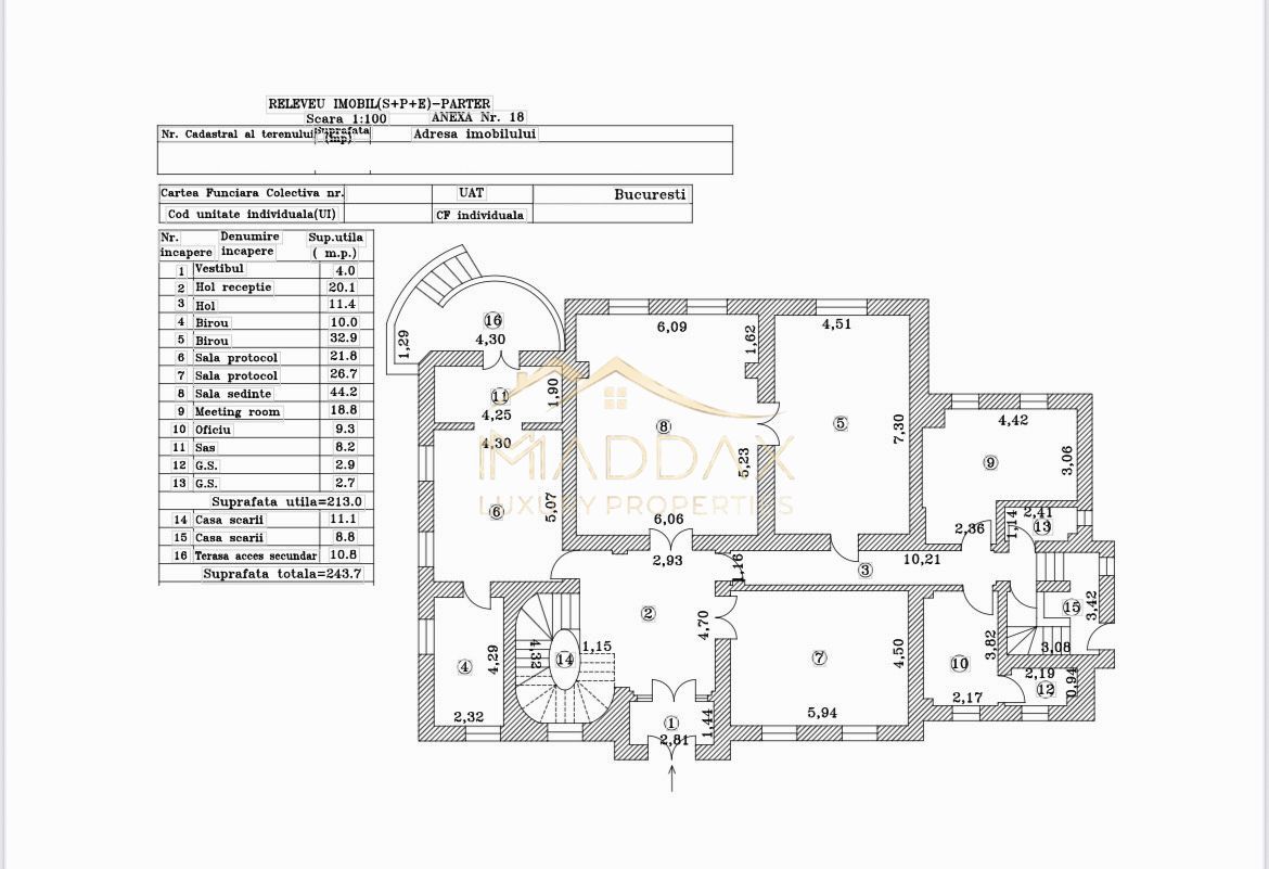
Proprietatea este dispusa pe 4 niveluri: demisol, parter, etaj si mansarda si ofera 18 camere spatioase (sali de protocol/birouri/sali pentru sedinte), elegante si luminoase, repartizate cate 6 pe fiecare nivel, 1 bucatarie, o chicineta si 5 bai. La demisol regasim birouri, camera tehnica, camera pentru server/IT, seif tezaur, precum si multiple spatii de depozitare. Mansarda vilei este un spatiu deschis, versatil, ideal pentru depozitare, fiind dotata cu detector de incendiu si hidrant ceea ce permite interventia rapida in caz de urgenta, asigurand siguranta conform cu standardele actuale.

Terasa generoasa de ~30 mp si curtea privata de 350 mp adauga valoare si intimitate spatiului.

Imobilul este complet renovat si imbina armonios farmecul interbelic cu functionalitatea moderna. Dispune de 3 cai de acces independente in cladire, oferind un flux functional excelent si un grad ridicat de confort.

Curtea privata permite parcarea a 6 masini, un atuu foarte important pentru clientii premium sau pentru birouri.

Pentru mai multe detalii, suntem aici pentru dumneavoastra,

Echipa MADDAX

Citește mai mult

  • Număr camere
    18
  • Număr bucătării
    2
  • Număr băi
    5
  • Număr balcoane
    1
  • Număr terase
    1
  • Număr locuri parcare
    6
  • Disponibilitate
    Imediat
  • Tip casă
    Individual
  • Stare interior
    Ultrafinisat
  • Anul finisării
    2025
  • Suprafață utilă
    627 mp
  • Suprafață construită
    714 mp
  • Suprafață curte liberă
    350 mp
  • Suprafață terasă
    29.6 mp
  • Stadiu construcție
    Finalizată
  • An construcție
    1938
  • Tip construcție
    Cărămidă
  • Număr etaje clădire
    1
  • Are demisol
    Da
  • Are pod
    Da

Facilități

Apă
Canalizare
CATV
Contor căldură
Contor electric
Contor gaz
Curent
Curte
Grădină proprie
Iluminat stradal
Izolație exterioară
Izolație interioară
Mijloace de transport în comun
Parcare deschisă
Străzi asfaltate
Ușă intrare lemn
Ventiloconvectoare
Cristina Popescu - MADDAX Luxury Properties
Cristina Popescu
Business Partner

+40732307465


Solicită chiar acum o vizionare
Telefon
Sună acum Solicită vizionare
Necesare:

Site-ul nu poate funcționa corect fără aceste cookie-uri. Vezi cookie-urile

Statistică:

Strângem statistici anonime despre voi, vizitatorii unici, pentru a vă îmbunătăți experiența dumneavoastră. Vezi cookie-urile

Marketing:

Pentru a ne promova mai eficient serviciile noastre, folosim cookies pentru a vă identifica și a vă oferi proprietăți și servicii personalizate. Vezi cookie-urile

Acest site folosește cookies, află detalii. Alege ce tipuri de cookies dorești să permitem: