ID CP2076774

Apartament 3 camere***Proiect NOU***//Lake view//Dna Ghica//Colentina

ID CP2076774

184,000 € + 21% TVA

Apartament cu 3 camere de vânzare
Colentina, Bucuresti
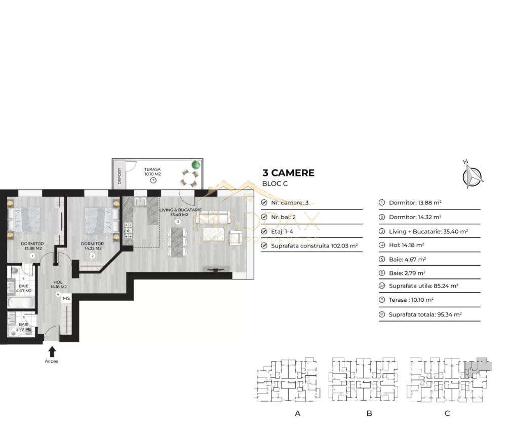
85.24 mp

MADDAX Luxury Properties va oferă oportunitatea de a deveni proprietarii unui apartament dintr-un complex rezidențial exclusivist, amplasat pe malul lacului,. Proiectul va fi finalizat la sfarsitul acestui an.

Locația oferă acces facil către toate zonele importante de interes:

*Pipera (4.1 km), Aviatiei (4.9 km), Piața Universității (5.5 km), Piata Obor (2.7 km)

*Transport public in comun: 5 min de mers pe jos stația de autobuz 243, linia N108, 850 m de stația de tramvai

* Parcuri: Plumbuita (0.9 km), Tei (1.7 km)

*Mall-uri: MegaMall (3.1 km), Veranda Mall (1.6 km),

*Supermarket: Kaufland, Carrefour, Lidl

*Scoli, Licee: ¬ 1 km

*Autostrada A3: 3.7 km

Imobilul dispune de vedere panoramica catre lac, oferind liniste, frumusete naturala și relaxare.

De asemenea, clădirea deține un Clubhouse special amenajat pentru petreceri private, locuri speciale pentru work-home, parc amenajat cu loc de joacă pentru copii și spații verzi, loc de joacă pentru animale de companie, parcare subterana auto, parcare pentru biciclete și scutere, stații de încărcare pentru mașinile electrice, panouri fotovoltaice pentru iluminatul părților comune și sistem de securitate.

Proiectul deține certificare nZEB și Green Homes, beneficiind de o eficienta energetica ridicata, datorită utilizarii panourilor fotovoltaice, pompelor de caldura, incalzire in pardoseala și a sistemului de recirculare a aerului.

Apartamentul este compartimentat astfel: living + bucatarie, 2 dormitoare, 2 bai, terasa de 10 mp amenajata cu spatiu pentru depozitare și este construit conform standardelor moderne: eficienta energetica, amprenta CO2 scazuta, materiale premium, tehnologii performante.

Imobilul se afla in faza de proiect avand avantajul de a achizitiona proprietatea la un preț preferential, asigurand un randament foarte bun al investiției. Un alt avantaj deosebit de important al achizitiei in acest stadiu este ca puteti fi designerul proprietății dvs, alegandu-va finisajele și compartimentarea ideala.

*** Imaginile sunt din showroom și sunt cu titlul de prezentare. La cerere, dezvoltatorul va poate mobila apartamentul, contracost.

Locul de parcare: 10200 - 16000 EURO + TVA (in funcție de locație și suprafața)

Boxa: 3000 - 8700 EURO + TVA

Pentru mai multe detalii suntem aici pentru tine,

Echipa Maddax Luxury Properties

Citește mai mult

  • Tip apartament
    Apartament
  • Număr camere
    3
  • Dormitoare
    2
  • Număr bucătării
    1
  • Număr băi
    2
  • Etaj
    3
  • Suprafață utilă
    85.24 mp
  • Suprafață construită
    102.08 mp
  • Suprafață terasă
    10.1 mp
  • Confort
    Lux
  • Stare interior
    Ultrafinisat
  • Număr terase
    1
  • Imobil
    Bloc de apart.
  • Stadiu construcție
    În construcție
  • Număr etaje clădire
    5

Facilități

Apă
Canalizare
CATV
Curent
Gaz
Iluminat stradal
Internet
Mijloace de transport în comun
Străzi asfaltate
Telefon
Cristina Popescu - MADDAX Luxury Properties
Cristina Popescu
Business Partner

+40732307465


Solicită chiar acum o vizionare
Telefon
Sună acum Solicită vizionare
Necesare:

Site-ul nu poate funcționa corect fără aceste cookie-uri. Vezi cookie-urile

Statistică:

Strângem statistici anonime despre voi, vizitatorii unici, pentru a vă îmbunătăți experiența dumneavoastră. Vezi cookie-urile

Marketing:

Pentru a ne promova mai eficient serviciile noastre, folosim cookies pentru a vă identifica și a vă oferi proprietăți și servicii personalizate. Vezi cookie-urile

Acest site folosește cookies, află detalii. Alege ce tipuri de cookies dorești să permitem: