ID CP1619727
Spatiu comercial S+P ***Prima Inchiriere*** // Piata Matache
    Această proprietate nu mai este activă,
    
    te invităm să vizualizezi proprietăți similare
  
ID CP1619727
5,000 € (negociabil)
Maddax Luxury Properties are placerea sa va prezinte un spatiu comercial stradal, intr-o zona centrala cu trafic intens, in proximitatea Pietii Matache.
Proprietatea este pretabila pentru aproape orice tip de business avand o pozitie excelenta, inconjurata fiind de toate punctele de interes si avand acces facil la toate mijloacele de transport.
Imobilul este compartimentat astfel:
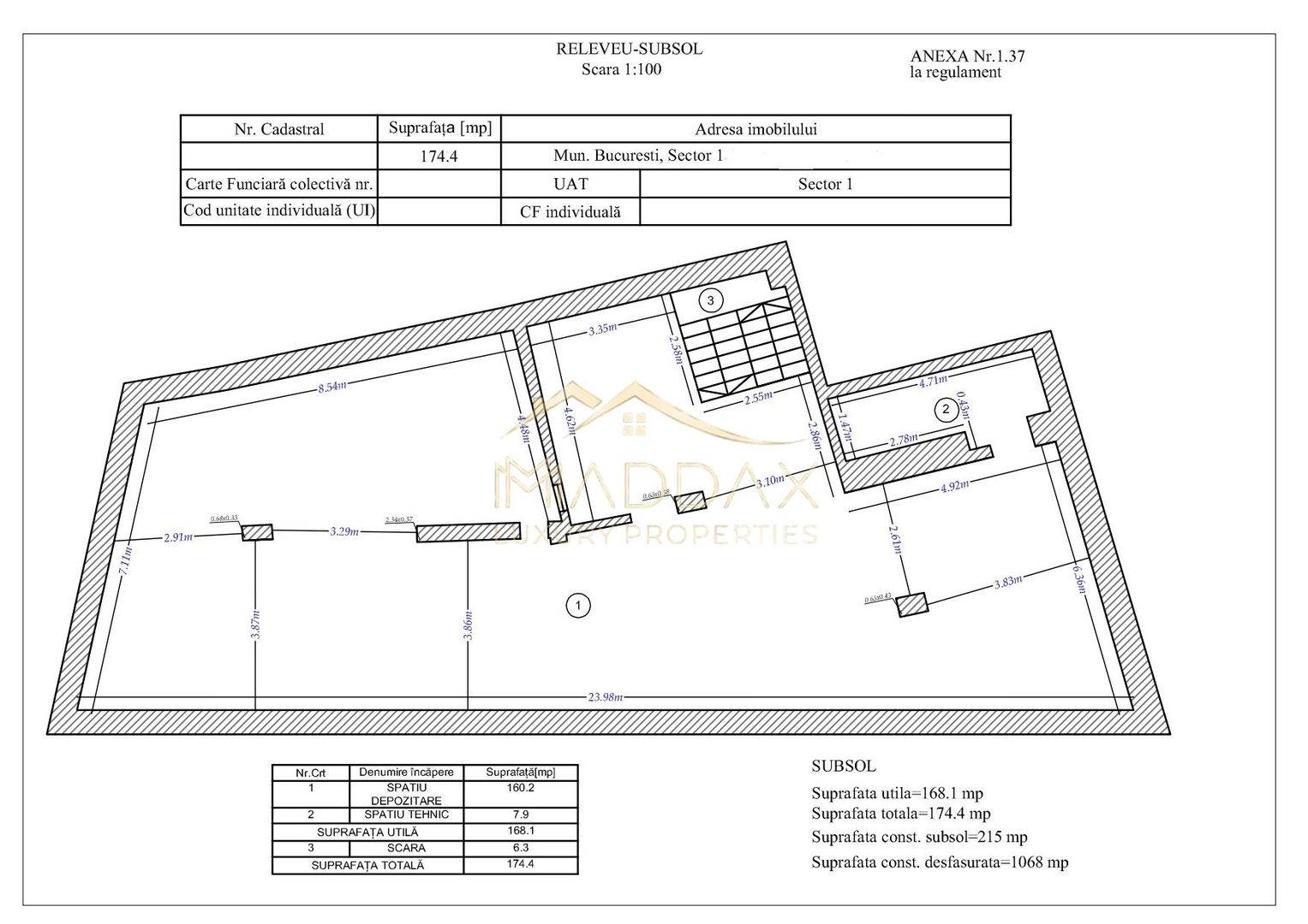
- Subsol (spatiu de depozitare + spatiu tehnic S.U 168.1 mp);
- Parter (spatiu comercial, camera tehnica si baie S.U 193 mp);
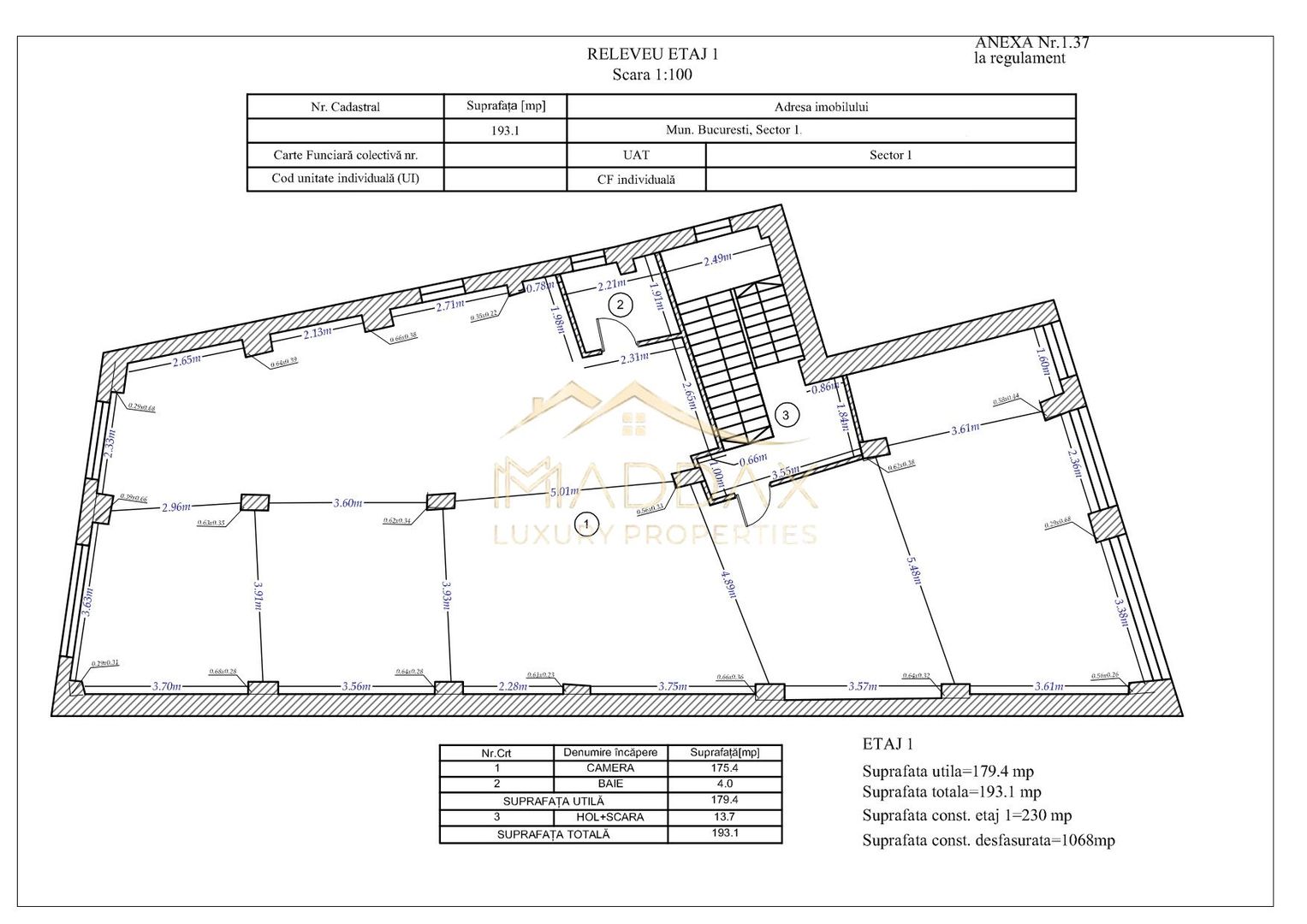
- Etaj 1 (camera, baie S.U 179.4 mp);
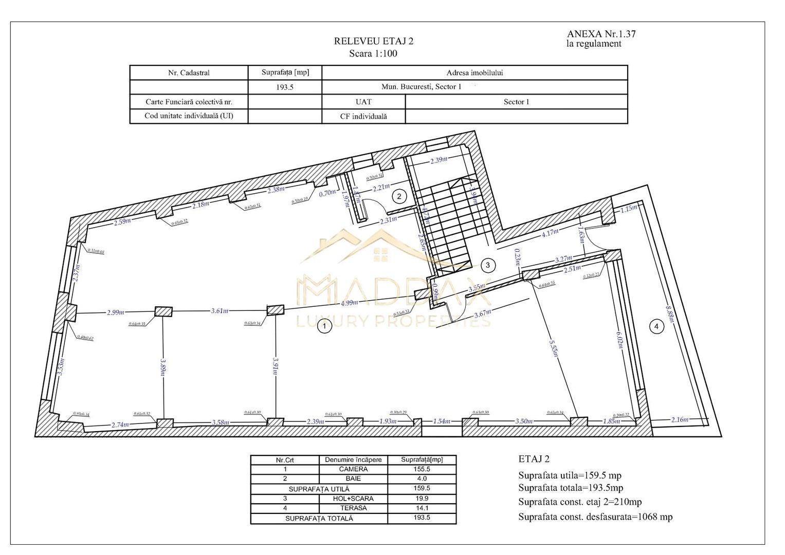
- Etaj 2 (camera, baie S.U 159.5 mp);
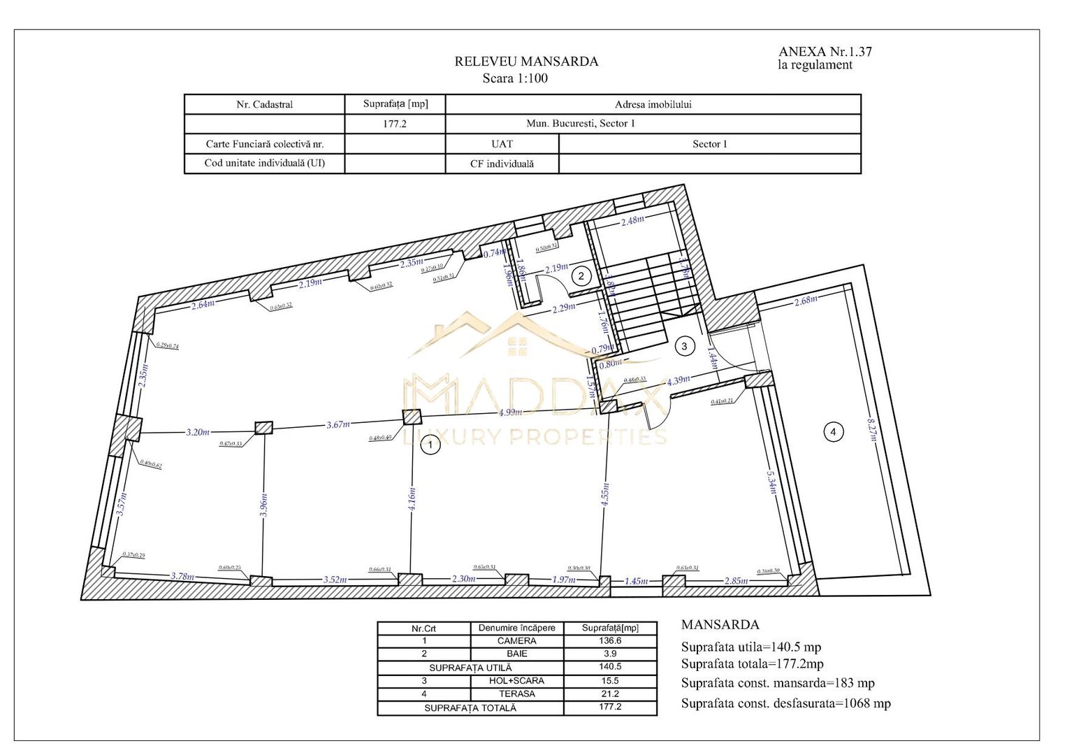
- Mansarda (camera, baie S.U 140,5 mp) cu o suprafata construita de 1068 mp si suprafata utila totala de 945 mp.
Proprietatea a fost executata cu finisaje de lux si dispune de cinci camere open space, 2 terase pe toata lungimea frontala a ultimelor 2 etaje (14,1 mp terasa etaj 2 si 21,2 mp terasa mansarda) si 4 bai utilate complet.
Intreg imobilul se inchiriaza la pretul de 10.000 Euro/luna sau separat si anume:
- S+P -- la pretul de 5000 euro/luna
- E1+E2+M -- la pretul de 5000 euro/luna
Pentru mai multe detalii, suntem aici pentru tine.
 
         
         
         
         
         
         
         
         
         
         
         
         
         
         
         
         
         
         
         
         
         
         
         
         
         
         
         
         
         
         
         
         
         
         
         
         
         
         
         
         
         
         
         
         
         
         
         
         
         
         
         
         
         
         
         
         
         
         
         
         
         
         
         
         
         
         
         
         
         
         
         
         
         
         
         
         
         
         
         
         
         
         
         
         
         
         
         
         
         
         
         
         
         
         
         
         
         
         
         
         
         
         
         
         
         
         
         
         
         
         
         
         
         
         
         
         
         
         
         
         
         
         
         
         
         
         
         
         
         
         
         
         
         
         
         
         
         
         
         
         
         
         
         
         
         
         
         
         
         
         
         
         
         
         
         
         
         
         
         
         
         
         
         
         
         
         
         
         
         
         
         
         
         
         
         
         
         
         
         
        