ID CP1602895

Impressive Villa // Floreasca Lake

Această proprietate nu mai este activă,
te invităm să vizualizezi proprietăți similare

ID CP1602895
Casă / Vilă cu 8 camere de închiriat
Floreasca, Bucuresti
427.2 mp
2015

Maddax are placerea sa prezinte o vila impresionanta situata la 50m de Lacul Floreasca.

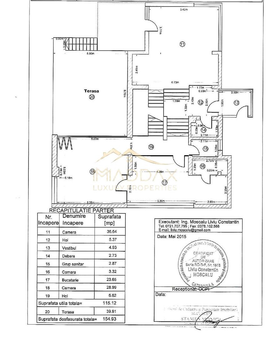
Proprietatea are o suprafata construita de 502mp si este compartimentata astfel:

***Demisol: 2 camere din care una este amenajata crama, grup sanitar, spatiu si camera tehnica, garaj;

***Parter: living cu o suprafata de 36.64mp cu posibilitate de iesire pe terasa (40mp), un dormitor, dressing, bucatarie, debara, un grup sanitar;

***Etaj 1: 3 camere cu posibilitate de iesire pe terasa proprie a fiecarei camere, 2 dressing-uri si 2 grupuri sanitare;

***Etaj 2: 1 camera, sauna, grup sanitar, un dressing si terasa.

Imobilul este executat cu finisaje de cea mai inalta calitate.

Pentru mai multe detalii, suntem aici pentru tine.

Citește mai mult

  • Număr camere
    8
  • Număr bucătării
    1
  • Număr băi
    5
  • Geam la baie
    Da
  • Număr terase
    5
  • Număr garaje
    1
  • Număr locuri parcare
    2
  • Disponibilitate
    Imediat
  • Tip casă
    Individual
  • Stare interior
    Ultrafinisat
  • Anul finisării
    2022
  • Suprafață utilă
    427.2 mp
  • Suprafață construită
    501.77 mp
  • Suprafață construită la sol (Amprentă)
    214 mp
  • Suprafață teren
    476 mp
  • Suprafață curte
    200 mp
  • Suprafață terasă
    71.47 mp
  • Acoperiș
    Terasă
  • Stadiu construcție
    Finalizată
  • An construcție
    2015
  • Construcție nouă
    Da
  • Tip construcție
    Beton
  • Număr etaje clădire
    2
  • Are demisol
    Da
  • Clasă Energetică
    A

Facilități

Apă
Apometre
Bideu
Bucătărie închisă
Bucătărie mobilată
Bucătărie utilată
Cabină de duș
Cadă
Cameră de aburi
Canalizare
CATV
Centrală proprie
Contor căldură
Contor electric
Contor gaz
Curent
Curte
Debara
Dressing
Ferestre care se deschid
Frigider
Garaj
Gaz
Geamuri cu izolație fonică
Geamuri cu protecție UV
Geamuri tripan
Grădină proprie
Hotă
Iluminat stradal
Încălzire prin pardoseală
Internet
Izolație exterioară
Izolație interioară
Jaluzele orizontale
Mijloace de transport în comun
Nemobilat
Parchet
Pivniță
Podele granit
Podele marmură
Saună
Scară interioară
Sistem de alarmă
Spații agrement
Străzi asfaltate
Telecomandă poartă garaj
Telefon
Ușă intrare metal
Uși interior celulare
Uși interior sticlă
Vedere panoramică
Vedere spre lac
Vedere spre oraș
Videointerfon
Vopsea lavabilă
WC Serviciu
Wireless
Necesare:

Site-ul nu poate funcționa corect fără aceste cookie-uri. Vezi cookie-urile

Statistică:

Strângem statistici anonime despre voi, vizitatorii unici, pentru a vă îmbunătăți experiența dumneavoastră. Vezi cookie-urile

Marketing:

Pentru a ne promova mai eficient serviciile noastre, folosim cookies pentru a vă identifica și a vă oferi proprietăți și servicii personalizate. Vezi cookie-urile

Acest site folosește cookies, află detalii. Alege ce tipuri de cookies dorești să permitem: