ID CP2216762
Vila cu 5 camere *366mp* / Curte privată + piscina*315mp*/ Pipera - Lake View
    Această proprietate nu mai este activă,
    
    te invităm să vizualizezi proprietăți similare
  
ID CP2216762
6,000 € + 21% TVA
Maddax are plăcerea sa prezinte o vila excepțională situată in una din cele mai prestigioase zone, Pipera, in proximitatea străzii Erou Iancu Nicolae.
Proprietatea se remarca prin locație, fiind împrejmuită de zona verde si lac, suprafețele mari vitrate cu tâmplărie Shuco, finisaje de cea mai înaltă calitate, pereți de interior din cărămida, parchet din lemn masiv, încălzire in pardoseala, gresie Marazzi, sanitare premium, fațada ventilată, placată cu Kinkler - Germania, grădina atent amenajată cu gazon si bambusi.
Locuinta este echipata cu cele mai actuale echipamente, Smart Home, pompă de căldură, panouri fotovoltaice.
Proprietatea este compartimentata astfel:
- Parter: Living open space cu bucătăria si posibilitate de iesire in grădina cu vedere liberă spre lac, piscina o baie de serviciu
- Etaj 1: trei dormitoare, 3 dressing-uri si 2 bai, o terasa generoasa de jur împrejur cu vedere liberă spre lac
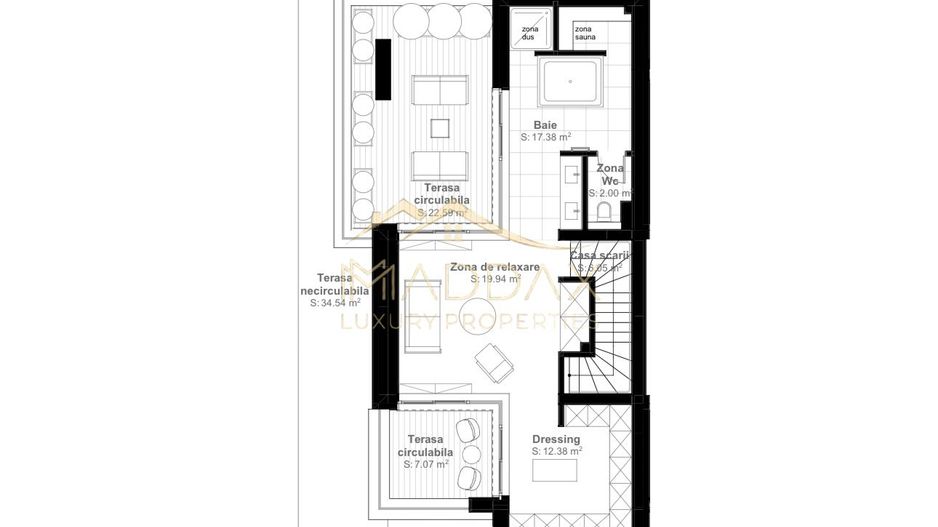
- Etaj 2: zona de relaxare, dressing, o baie impresionanta cu posibilitate de iesire pe terasa.
Locuința se inchiriaza cu Bucătărie complet mobilata si utilată si dressing-uri montate pe comanda.
Vila are in proprietate 2 locuri de parcare in subteran si boxa de depozitare.
Proprietatea are panouri fotovoltaice si pompa de caldura, consum 0, iar mentenanta pisinei, gradinar etc sunt incluse in pretul chiriei.
Pentru mai multe detalii, suntem aici pentru tine.
 
         
         
         
         
         
         
         
         
         
         
         
         
         
         
         
         
         
         
         
         
         
         
         
         
         
         
         
         
         
         
         
         
         
         
         
         
         
         
         
         
         
         
         
         
         
         
         
         
         
         
         
         
         
         
         
         
         
         
         
         
         
         
         
         
         
         
         
         
         
         
         
         
         
         
         
         
         
         
         
         
         
         
         
         
         
         
         
         
         
         
         
         
         
         
         
         
         
         
         
         
         
         
         
         
         
         
         
         
         
         
         
         
         
         
         
         
         
         
         
         
         
         
         
         
         
         
         
         
         
         
         
         
         
         
         
         
         
         
         
         
         
         
         
         
         
         
         
         
         
         
         
         
         
         
         
         
         
         
         
         
         
         
         
         
         
         
         
         
         
         
         
         
         
         
         
         
         
         
         
         
         
         
         
         
         
         
         
         
         
         
         
         
         
         
         
         
         
         
         
         
         
         
         
         
         
         
         
         
         
         
         
         
         
         
         
         
         
         
         
         
         
         
         
         
         
         
         
         
         
         
         
         
         
         
         
         
         
         
         
         
         
         
         
         
         
         
         
        