ID CP2797912

Vila P+1*4 Camere*3 Bai*Teren 300 mp//Tamasi - Corbeanca

ID CP2797912

160,000 € + 21% TVA

Casă / Vilă cu 4 camere de vânzare
Corbeanca
135 mp
2024

MADDAX Luxury Properties are placerea de a va prezenta spre vanzare o vila tip duplex, P+1, situata in localitatea Tamasi - Corbeanca.

Proprietatea ofera confortul unei locuinte moderne, amplasata intr-un cadru natural linistit. Zona este in plina dezvoltare, regasind locuinte noi, vile si duplexuri in vecinatate si ofera acces facil catre DN1 si Autostrada A3, scoli, gradinite, benzinarii, supermarketuri.

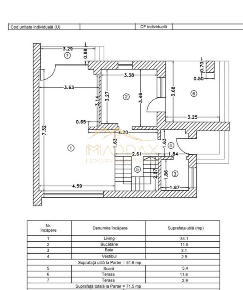
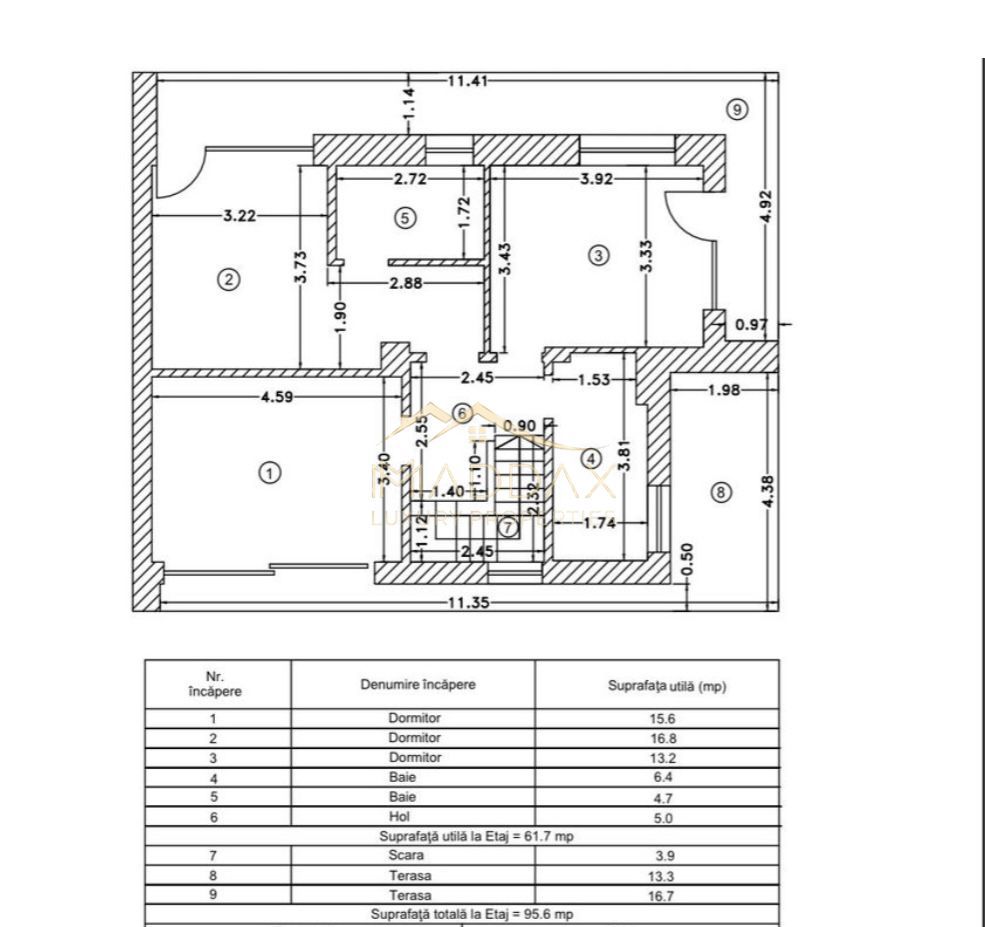
Vila, cu suprafata utila de 135 mp, are o compartimentare excelenta, perfecta pentru stilul de viata contemporan: living spatios, bucatarie open space, 3 dormitoare, 3 bai si 2 terase. Suprafețele vitrate generoase permit luminii naturale să inunde spațiile interioare, creând o atmosferă luminoasă și primitoare.

Casa se preda finisata, cu materiale de calitate, parchet si piatra naturala, ferestre Salamander. Incălzirea în pardoseală adaugă un plus de confort, asigurând o temperatură constantă și un climat interior optim pe tot parcursul anului.

Intre cele doua vile se afla un perete dublu despărțitor, asigurând intimitate și confort pentru viitorii proprietari.

In curte sunt amenajate 2 locuri de parcare.

Vila dispune de fosa septica si put, avand pregatita toata instalatia pentru a fi bransata la sistemul de canalizare al comunei.

Va oferim oportunitatea unui nou inceput, intr-o casa care are tot ce va doriti: spatiu, lumina, confort si natura.

Pentru mai multe detalii suntem aici pentru dumneavoastra,

Echipa MADDAX Luxury properties

Citește mai mult

  • Număr camere
    4
  • Dormitoare
    3
  • Număr bucătării
    1
  • Număr băi
    3
  • Număr terase
    2
  • Număr locuri parcare
    2
  • Disponibilitate
    Imediat
  • Tip casă
    Individual
  • Suprafață utilă
    135 mp
  • Suprafață construită
    145 mp
  • Suprafață construită la sol (Amprentă)
    70.0 mp
  • Suprafață teren
    300 mp
  • Suprafață curte liberă
    150 mp
  • Acoperiș
    Tablă
  • Stadiu construcție
    Finalizată
  • An construcție
    2024
  • Număr etaje clădire
    1

Facilități

Apă
Bucătărie deschisă
Centrală proprie
Curent
Curte
Fosă septică
Geamuri tripan
Grădină proprie
Iluminat stradal
Încălzire prin pardoseală
Izolație exterioară
Izolație interioară
Mijloace de transport în comun
Nemobilat
Podele piatră naturală
Străzi asfaltate
Vedere panoramică
Vopsea lavabilă
Cristina Popescu - MADDAX Luxury Properties
Cristina Popescu
Business Partner

+40732307465


Solicită chiar acum o vizionare
Telefon
Sună acum Solicită vizionare
Necesare:

Site-ul nu poate funcționa corect fără aceste cookie-uri. Vezi cookie-urile

Statistică:

Strângem statistici anonime despre voi, vizitatorii unici, pentru a vă îmbunătăți experiența dumneavoastră. Vezi cookie-urile

Marketing:

Pentru a ne promova mai eficient serviciile noastre, folosim cookies pentru a vă identifica și a vă oferi proprietăți și servicii personalizate. Vezi cookie-urile

Acest site folosește cookies, află detalii. Alege ce tipuri de cookies dorești să permitem: